
Part of the mural on display at the Housing Multitudes exhibition at the University of Toronto.Harry Choi Photography/Supplied
Imagine a metropolis that stretches out to the horizon. It spills across municipal borders and leaps river valleys. Its form is consistent: A sea of houses, punctuated by skyscrapers in tight clusters and in long, skinny corridors.
This is how municipal planners imagine the Toronto surrounding area in the future: a region of 10 million whose buildings are either tall or sprawl. It is captured in a 22-metre-long mural within an exhibition at the University of Toronto called Housing Multitudes, a show that explores this vast territory and asks a good question: Can we find a better way to build?
The show, whose subtitle is Reimagining the Landscapes of Suburbia, fills the Architecture and Design Gallery at the John H. Daniels Faculty of Architecture, Landscape and Design.
The curators, Daniels professors Michael Piper and Richard Sommer, present an incisive analysis of what’s happening across the Greater Toronto and Hamilton Area and offer solutions – some utopian and some very practical – for the next century.
“In order to transform the region, we need to reframe our understanding of it,” Mr. Piper told me as we strolled through the gallery’s underground space. He suggested that the vision captured in the mural deserves to be challenged.

Plans prepared by LGA Architectural Partners, together with Daniels faculty and students, show how space is used in a typical Toronto house.rehousing.ca/Supplied
“So often, the understanding of what the region can be is based on an understanding of downtown Toronto,” he explained. “We’ve chosen to take a little bit of downtown and repeat it on a few sites.” (This generates those isolated spikes of tall towers.) “But that means 70 to 80 per cent of our land area is reserved for houses, and it’s off-limits to change. Does that really make sense?”
Housing Multitudes explores the in-between zone: the buildings that make up most of the region, lining crescents and culs-de-sac. “These places haven’t been subject to enough study, or enough change,” said Mr. Sommer. “Our goal was to look at how they could evolve, like any great city does.”
In short: The suburban territory is huge, and it can (and will) change.
These points may seem obvious. But in the upside-down world of urban planning, they are not. For half a century the planning sector in Ontario sorted out people and building into different zones. Houses for middle-class families over here; industry in its own corner; shopping malls here and there; and a scattering of apartments and townhouses for those of lesser means.
This was overseen by provincial authorities, and contrary to the popular image, it didn’t happen by accident. Ontario’s planning, heavily influenced by British institutions, was more systematic than its American counterparts. “This was guided by a very clear vision,” Mr. Sommer argues.
But that vision didn’t account for the ways houses and households might change. “When you scratch under the surface” of suburban house neighbourhoods, Mr. Piper says, “there’s a whole world of occupation that is much more dense than we imagine. But those people don’t want to be vocal, because their ways of living – like rooming houses – are often illegal.”
The work in Housing Multitudes takes that diversity for granted, and imagines how the buildings of the suburbs could evolve to meet it.
Take a neighbourhood of 1970s detached houses on curvy streets. It’s surrounded by a grid of major roads lined by fences and a strip of green space. In Mr. Sommer and Mr. Piper’s imagined future, government acquires some houses around the borders of the neighbourhood and rebuilds them as a strip of four-storey apartment buildings. Then the city cuts through the blocks to create straight, green, pedestrian-friendly pathways. Presto: The area houses hundreds more people of different incomes and abilities. And the public spaces of the neighbourhood are rebalanced away from cars, ready for a future in which transit and autonomous vehicles make driving less necessary.

A design shows how this house could be subdivided into separate units.rehousing.ca/Supplied
This vision is not Markham or Manhattan. It’s something else.
Such large-scale change may seem impossible if you know Aurora or Streetsville today. But Mr. Sommer points out that much of the suburban territory is occupied by its first wave of development. In other words, its buildings are generally the first things ever constructed on those sites. It’s inevitable, as he says, that these will be replaced by something – and then by something else. “We need to think about not just the next wave of development,” Mr. Sommer said, “but the fourth and the fifth.”
Thinking with this long-term perspective, Mr. Piper and Mr. Sommer uncover some suburban structures that could find fresh uses.
For instance: every neighbourhood in the region has public schools at its centre. How could these become community hubs for different kinds of services, as well as the odd publicly owned apartment building? Or: What if governments took over shopping malls and used them to provide manufacturing facilities for local small businesses? Such invention sets the tone for a new, ambitious rethinking of the territory.
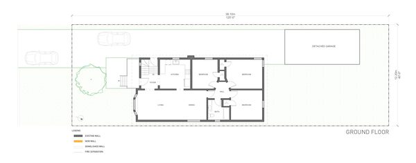
But the last section of the show provides immediate solutions: designs developed by LGA Architectural Partners in collaboration with Daniels faculty and students to remake Toronto houses into smaller living spaces. (This research is supported by the Neptis Foundation.) Do you have a 1980s house on a 40-foot lot? Here’s how you can renovate it and repurpose the garage to get a triplex. A 1950s veteran’s bungalow? It could turn into three apartments and add another small house in the backyard.
These plans are available for free on a website, rehousing.ca. Ordinary people can pick up on them and use them. The goal is to empower “citizen developers” to work independently, or form alliances, to create different forms of housing that serve their own needs and interests. Graphic-novel-style narratives explain how this could work.
The show intersects with an evolution in the discourse of planning. Various critics have been calling for years for Toronto open up its house neighbourhoods; the curators mention the book House Divided, for which I was an editor, as a touchstone. Toronto’s government is now exploring so-called “Housing Options in Neighbourhoods.” And the Ontario government has moved to legalize three units on each lot, making the citizen-developer scenarios plausible.
But there’s still much work to be done by governments, planners, home builders and, eventually, individuals rebuilding for themselves. Housing Multitudes opens the door to that change.